Stortuva Barnehage - Løst inventar
Ålvundeid

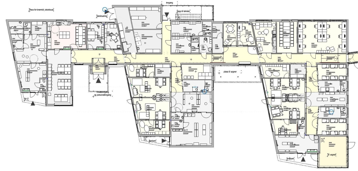
Innredning av ny barnehage, med SFO-Funksjon integrert. Den nye barnehagen er fysisk knyttet sammen med dagens eksisterende barnehage, men fremstår som et selvstendig bygg.

Status
Ferdigstilt 2019
Sted
Ålvundeid, Sunndal
Oppdragsgiver
Sunndal Kommune
Størrelse
400 m2
Tiltak
Nybygg og ombygging
Fagområde
Interiør
Anskaffelse
Konkurranse
Samarbeidspartner
Vibo Entreprenør AS

Konsept for løst inventar som forsterker anleggets arkitektoniske prosjekt og gir gode rammer for lek og utvikling for barna samt gode arbeidsforhold for personalet.

Medvirkning i byggeprosjektets valg av farger og materieler utvendig og innvendig, og med et bygg med gode fargeinnslag i selve bygningskroppen er det lagt vekt på rolige, avstemte møbler og en fleksibilitet i møblering gjennom et begrenset antall varianter av stoler, bord mm. Barnehagen har et sterkt estetisk konsept, og det løse inventaret forsterker og understreker konseptet, og binder det hele sammen.