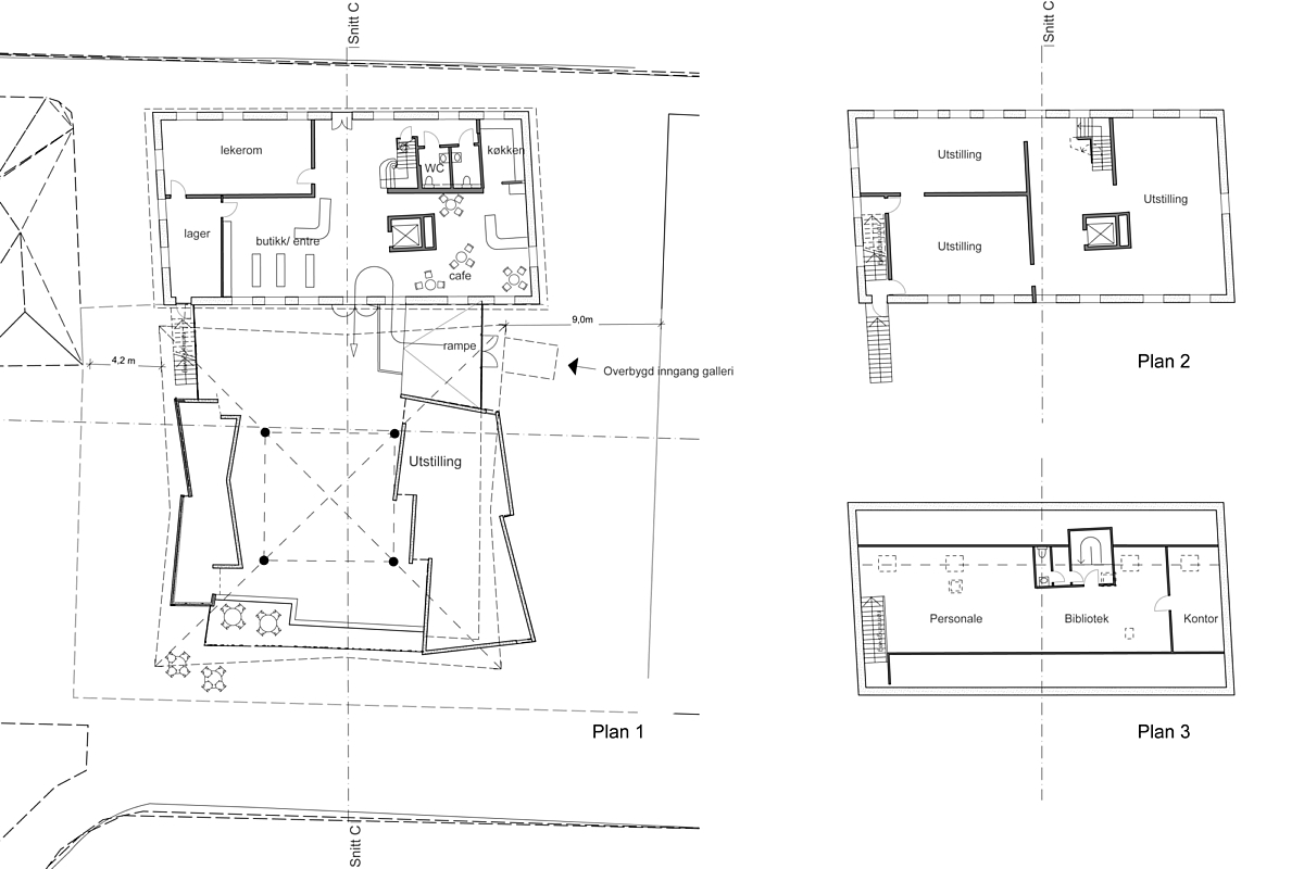
Gråmølna
Trondheim

Å knytte nytt og gammelt sammen ved å etablere taket som det dominerende element over et kulturtorg preget av to utstillingsbokser.

Status
Ferdigstilt 2008
Sted
Trenerys gate 9, Trondheim
Oppdragsgiver
Nedre Elvehavnbygg AS
Størrelse
400 m2 nybygg og 600 m2 ombygging
Tiltak
Nybygg og Ombygging
Fagområde
Arkitektur og Interiør
Kontaktperson
Per Knudsen

Kulturtorget er et åpent og utadvendt sentralrom med det gamle bygget som fondmotiv og som den ene veggen i rommet.

Forbilde er en bensinstasjon som gir energi – likeså som kunsten.